Главная
О компании
Цены
Строительство
Проекты
Дизайн
Контакты
СТРОИТЕЛЬСТВО
ПРОЕКТЫ ДОМОВ
Дома из газобетона
Кирпичные дома
Комбинированные дома
Дома из газобетона
Кирпичные дома
Комбинированные дома
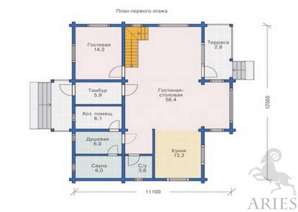
Проект дома из газобетона 199,5 кв.м КБ-60
Общая площадь дома: 199.5 кв.м
Площадь 1-го этажа: 114,2 кв.м
Площадь мансарды: 85,3 кв.м
Одноэтажный дом с мансардой
МСК "ЕВРОДОМ"
/
Проекты домов и коттеджей
/
Проекты домов из газобетона
/
Проект дома из газобетона 199,5 кв.м КБ-60
Проект дома из газобетона 199,5 кв.м КБ-60