Главная
О компании
Цены
Строительство
Проекты
Дизайн
Контакты
СТРОИТЕЛЬСТВО
ПРОЕКТЫ ДОМОВ
Дома из газобетона
Кирпичные дома
Комбинированные дома
Дома из газобетона
Кирпичные дома
Комбинированные дома
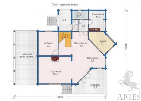
Проект дома из газобетона 191,8 кв.м КД-49
Общая площадь дома: 191.8 кв.м
Площадь 1-го этажа: 104,1 кв.м
Площадь мансарды: 87,7 кв.м
Одноэтажный дом с мансардой
МСК "ЕВРОДОМ"
/
Проекты домов и коттеджей
/
Проекты домов из газобетона
/
Проект дома из газобетона 191,8 кв.м КД-49
Проект дома из газобетона 191,8 кв.м КД-49