ARIES HOME
ГлавнаяО компанииЦеныСтроительствоПроектыДизайнКонтакты
 
СТРОИТЕЛЬСТВО
ПРОЕКТЫ ДОМОВ

Проект дома из газобетона Lyla 273,9 кв.м

  • Общая площадь дома: 273.9 кв.м
  • Площадь цокольного этажа: 89.0 кв.м
  • Площадь 1-го этажа: 105.8 кв.м
  • Площадь 2-го этажа: 84.8 кв.м

Двухэтажный дом

Проект дома из газобетона Lyla 273,9 кв.м

Дом из газобетона Lyla

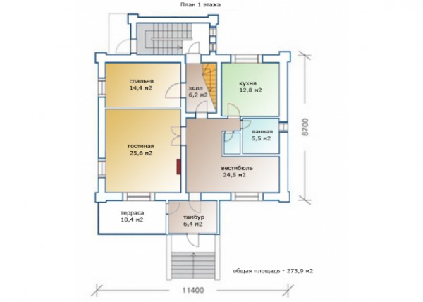
S 1 этажа – 105,8 м2

Экспликация помещений 1 этажа:

Тамбур – 6,4 м2

Терраса – 10,4 м2

Вестибюль – 24,5 м2

Ванная – 5,5 м2

Кухня – 12,8 м2

Холл – 6,2 м2

Спальня – 14,4 м2

Гостиная - 25,6м2

S 2 этажа – 84,8 м2

Экспликация помещений 2 этажа:

Холл – 9,5 м2

Спальня – 13,2 м2

С/у – 4,0 м2

Спальня – 17,9 м2

Спальня – 20,1 м2

Спальня – 20,1 м2

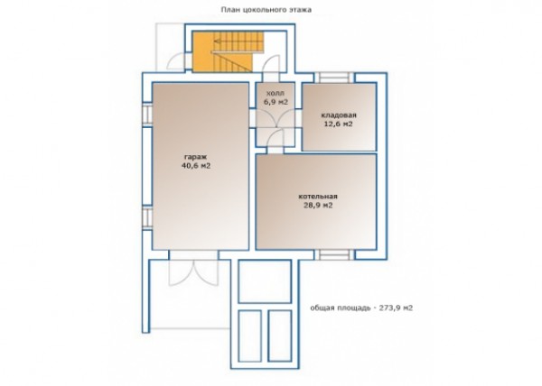
S цокольного этажа – 89,0 м2

Экспликация помещений цокольного этажа:

Холл – 6,9 м2

Кладовая – 12,6 м2

Котельная – 28,9 м2

Гараж – 40,6 м2